![]() |
- HKF-L過濾器安裝框單元
- 提交訂單
◆安裝框結構簡單,通用性強,可按所需風量組合于集中通風或空調系統的預過濾
◆使用周期周期長,可以靈活改變,可以根據客戶的要求生產
常用規格性能特點框體結構應用
|
型 號 |
規 格 (mm) |
可裝過濾器規格 (mm) |
|
HKF-L-242401 |
610×610×70 |
595×595×46 |
|
HKF-L-122401 |
305×610×70 |
290×595×46 |
|
HKF-L-242402 |
610×610×75 |
595×595×50 |
|
HKF-L-122402 |
305×610×75 |
290×595×50 |
===性能特點與應用===
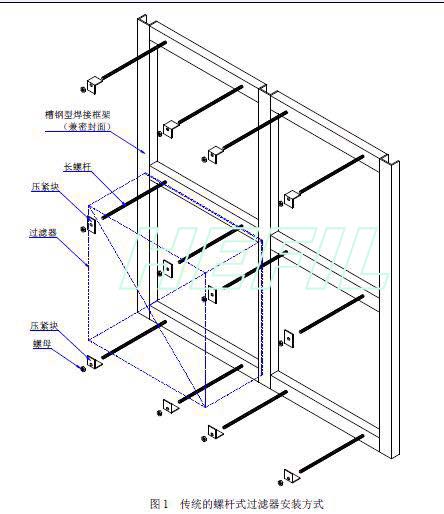
◆HKF-L型過濾器安裝框架結構簡單,通用性強,用戶可以按所需風量組合于集中通風或空調系統的過濾段。
◆在HKF-L框架上,可以安裝大多數國際通行尺寸一般通風用過濾器,包括本公司生產的:
HBM-袋式中效空氣過濾網;
HBP-袋式初效空氣過濾網;
HPP-板式初效空氣過濾網;
HACP-折疊式活 性炭過濾器;
HACD-袋式活 性炭過濾器;
◆HKF-L型過濾器安裝框架結構簡單,通用性強,用戶可以按所需風量組合于集中通風或空調系統的過濾段。
◆在HKF-L框架上,可以安裝大多數國際通行尺寸一般通風用過濾器,包括本公司生產的:
HBM-袋式中效空氣過濾網;
HBP-袋式初效空氣過濾網;
HPP-板式初效空氣過濾網;
HACP-折疊式活 性炭過濾器;
HACD-袋式活 性炭過濾器;



===應用===
◆HKF型過濾器安裝框架結構簡單,通用性強,用戶可以按所需風量組合于集中通風或空調系統的過濾段。
◆在HKF框架上,可以安裝大多數國際通行尺寸一般通風用過濾器,包括本公司生產的:HBM、HBP、HPP、HACP、HACD、等型號。
![]()
上一個: HKF-H過濾器安裝框單元
下一個:暫無下一篇





